Powered by AI

Renderização 3D com
Inteligência Artificial

Transformação fotorrealista automatizada por IA

Cozinha Gourmet

Arraste para comparar o projeto com a renderização

Projeto Cozinha
Render Cozinha
Projeto Render

Sala de TV

Arraste para comparar o projeto com a renderização

Projeto Sala de TV
Render Sala de TV
Projeto Render

Sala de Jantar

Arraste para comparar o projeto com a renderização

Projeto Sala de Jantar
Render Sala de Jantar
Projeto Render

Como funciona

Projeto SketchUp

Upload das imagens

IA Gemini 3 Pro

Renderização automática

Resultado

Fotorrealismo em segundos

Este projeto foi renderizado automaticamente por inteligência artificial. O agente Naia utilizou o modelo Gemini 3 Pro para transformar cada ambiente em uma visualização fotorrealista. O processo completo levou menos de 3 minutos.

Projeto Arquitetônico 2D

Sobrado moderno estilo mini-mansão. Terreno 10×25m. Gerado inteiramente por IA.

250m²
Terreno
~210m²
Área construída
1:100
Escala
10×25m
Dimensões
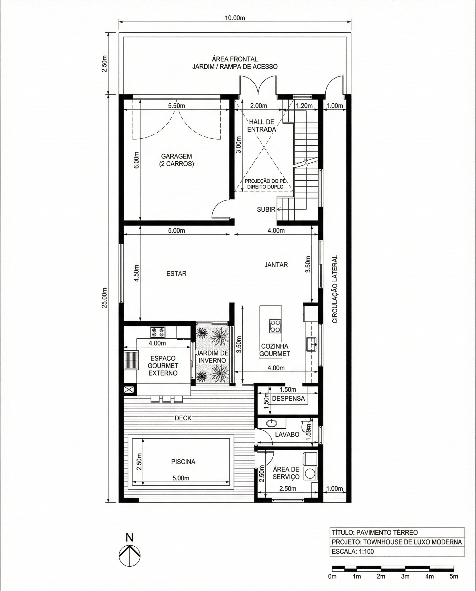
Planta Baixa — Pavimento Térreo

Pavimento Térreo

  • Garagem para 2 veículos (5.5m × 6m)
  • Hall de entrada com pé-direito duplo
  • Sala de estar integrada (5m × 4.5m)
  • Sala de jantar (4m × 3.5m)
  • Cozinha gourmet com ilha (4m × 3.5m)
  • Despensa
  • Lavabo
  • Área de serviço
  • Espaço gourmet com churrasqueira
  • Piscina com deck (2.5m × 5m)
  • Jardim de inverno
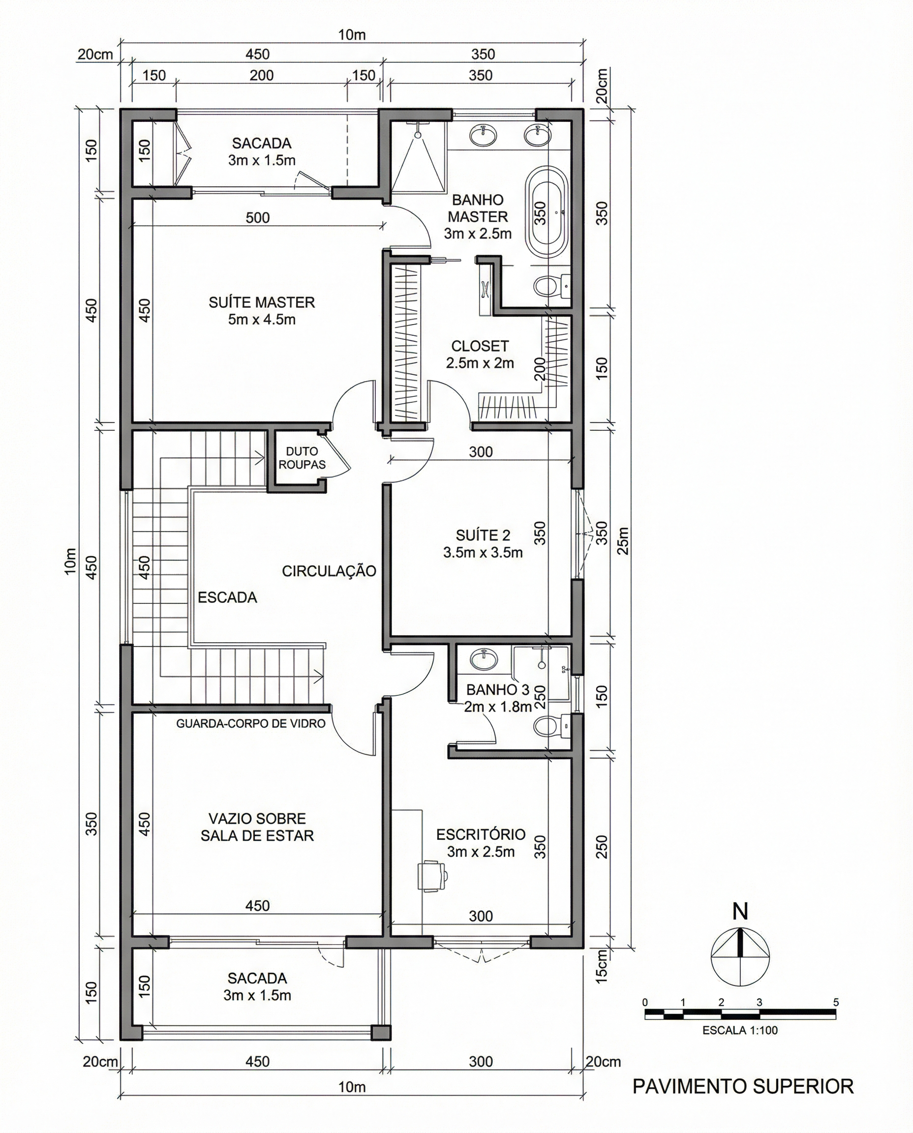
Planta Baixa — Pavimento Superior

Pavimento Superior

  • Suíte master com closet e banheiro completo (5m × 4.5m)
  • Suíte 2 com banheiro (3.5m × 3.5m)
  • Suíte 3 com banheiro (3.5m × 3m)
  • Home office (3m × 2.5m)
  • Sacada na suíte master
  • Mezanino com vista para sala
Fachada Frontal

Fachada Frontal

  • Estilo contemporâneo moderno
  • Largura total: 10m
  • Altura: ~7.5m (dois pavimentos)
  • Revestimento em stucco branco e pedra cinza escuro
  • Painéis em ripas de madeira
  • Guarda-corpo em vidro na sacada
  • Telhado plano com platibanda
  • Iluminação LED de destaque
Planta Área de Lazer

Área de Lazer

  • Espaço Gourmet com churrasqueira (4m × 3m)
  • Piscina (2.5m × 5m) com deck em porcelanato
  • Espreguiçadeiras e ducha
  • Paisagismo tropical
  • Bancada com 4 banquetas
  • Conexão com interior via portas de correr

Fachada 3D

Renderização fotorrealista gerada por IA a partir do projeto 2D acima

Renderização 3D da Fachada

Área de Lazer 3D

Piscina, deck e espaço gourmet com churrasqueira

Renderização 3D - Piscina e Área Gourmet

Este projeto arquitetônico foi gerado inteiramente por inteligência artificial utilizando o modelo Gemini 3 Pro. As plantas baixas e a fachada foram criadas automaticamente a partir de especificações técnicas, demonstrando o potencial da IA na fase inicial de projetos arquitetônicos.

Arquivo 3D para SketchUp

Baixe o projeto e abra diretamente no SketchUp

sobrado-10x25.dae

Formato COLLADA (.dae)

Baixar Arquivo 3D
10×25m
Terreno
2
Pavimentos
~210m²
Área construída
.dae
Formato

Como usar

  1. 1Baixe o arquivo sobrado-10x25.dae
  2. 2Abra o SketchUp e vá em File → Import
  3. 3Selecione o arquivo .dae e clique em Import
  4. 4O modelo contém a estrutura básica do sobrado com paredes, lajes, escada e piscina